

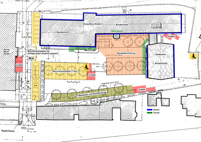
Die Baustelleneinrichtung beginnt mit der Stellung eines Bauzaunes, mit dem der Parkplatz vor dem Gebäude Georg-Maus-Straße 2 im Bereich Ordnungsamt / Stadtwerke abgesperrt wird. Der Zugang zu den Büros des Vollzugsdienstes sowie der Schiedspersonen erfolgt während der Baumaßnahme über den Eingang zur Göttenbach-Aula. Der Zugang zum Ordnungsamt, Gebäudemanagement und den Stadtwerken wird durch einen entlang des Werkstattgebäudes der Stadtwerke verlaufenden geschützten Fußgängertunnel sichergestellt.
Parkplatz abgesperrt
Der abgesperrte Parkplatzbereich dient als Lagerfläche für Maschinen und Baumaterial. Die dort befindliche OIE-Ladesäule kann in dieser Zeit nicht genutzt werden. Die nächstgelegenen Ladesäulen befinden sich unter dem Anbindungsast Auf der Idar und am Bahnhof. Die Besucherparkplätze werden während der Baumaßnahme sowohl vor als auch hinter die Baumreihe entlang des Gebäudes Göttenbach-Aula angeordnet. Die Parkzeit ist auf eine Stunde begrenzt und wird während der Baumaßnahme konsequent kontrolliert. Aufgrund von Materiallieferungen kann es vereinzelt auch zu kurzfristigen Sperrungen der Parkplätze vor dem Rathaus entlang der Georg-Maus-Straße kommen.
Die Baumaßnahme
Die Energetische Sanierung der Verwaltungsgebäude umfasst hauptsächlich folgende Maßnahmen: Beim Laborgebäude der Stadtwerke werden die Decke über den Garagen sowie Betonstürze und -brüstungen gedämmt, außerdem wird die Verglasung teilweise erneuert.
Beim Gebäude Georg-Maus-Straße 2 werden die oberste Geschossdecke und die Giebelseiten gedämmt sowie die Dacheindeckung erneuert. Die Göttenbach-Aula erhält eine neue Lüftungsanlage mit Wärmerückgewinnung. In diesem Gebäude erfolgt auch die Errichtung einer neuen pellet- und gasbefeuerten Heizungsanlage, über die alle drei Gebäude zentral beheizt werden. In den beiden Gebäuden der Stadtverwaltung werden außerdem die Beleuchtungsanlagen in den Fluren und Treppenhäusern auf moderne und sparsame LED Technik umgestellt, außerdem muss die Batterieanlage der Notbeleuchtung der Aula erneuert werden.
Kosten: 1,5 Mio. Euro
Die Gesamtmaßnahme hat ein Investitionsvolumen von 1,49 Millionen Euro und wird im Rahmen des Kommunalen Investitionsprogramms 3.0 (KI 3.0) mit 90 Prozent bezuschusst. Außerhalb dieses Förderprogramms erfolgt auch noch die Installation einer Photovoltaik-Anlage auf dem Dach des Gebäudes Georg-Maus-Straße 2. Hierfür werden weitere 115.000 Euro investiert.




